




Así vivimos este proyecto
Una cocina que acoja las risas y atesore los buenos momentos en el tiempo.
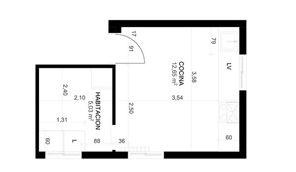
Este cliente llegó con la petición de una reforma provisional para su cocina, y la principal prioridad era hacerla cómoda.
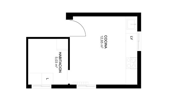
En la propuesta que le presentamos, se elimina el tabique que separa la cocina con la habitación de servicio, creando un espacio abierto.
Se añade un primer eje de módulo de muebles donde se ubican el horno,el fregadero, la basura bajo encimera, sistema de purificación de agua, lavavajillas, cocina a gas y almacenaje en mobiliario superior.
Colocamos un mueble encimera tipo península, con la ubicación de la vinoteca y mobiliario de almacenaje bajo, además de una barra desayunadora para dos puestos.
A petición del cliente, el estilo para la cocina sería el colonial.