









Así vivimos este proyecto
Render 1:
“Nos gusta vivir la casa”, nos comentó el cliente . Y bajo esa premisa, comenzamos a reformar su
vivienda (y su vida).
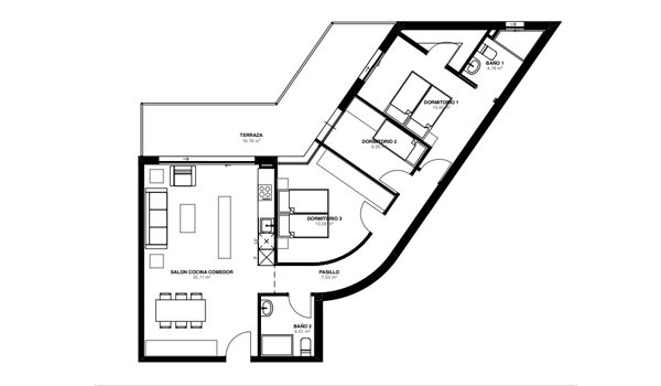
Este salón abierto es parte de la propuesta II del Pack Aurea (reforma integral), de una vivienda familiar
de dos adultos y dos niños.
Su ilusión era tener una casa agradable, elegante y funcional, y por supuesto, incluir las plantas que
tanto le encantaban.
¡Qué se haga la magia!
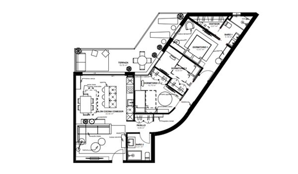
Presentamos un salón abierto a la cocina, obteniendo así un espacio más amplio y fluido, ideal para
compartir con la familia.
A esta propuesta en particular, le agregamos la TV y el mueble, una estructura que permite girar la TV a
180° para que pueda funcionar tanto para el salón como el comedor.
Render 2:
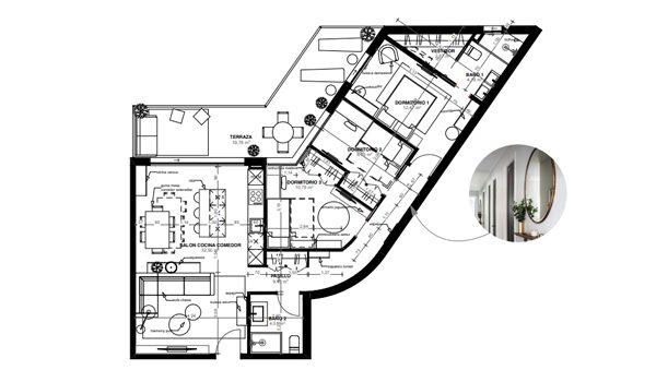
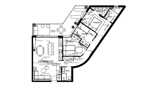
¿Recordáis la primera propuesta que os enseñamos de esta vivienda?
Ahora os presentamos esta distribución que permite visualizar el resto del comedor/cocina, y con un
sofá modelo chaise enfrentado a la entrada principal, con vista directa a la TV.
En las dos propuestas, mantuvimos los tonos naturales, las plantas, la lamparita, y el sofá tipo chaise,
por petición del cliente.