




Así vivimos este proyecto
Tantas palabras para describir este salón, y nos quedamos con: ESPECIAL.
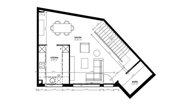
Todo comenzó cuando este cliente se preguntó si esta podía ser su nueva vivienda, ya que se encontraba ante una distribución poco común, y ciertamente requería un cambio de aires.
Pronto, nos contactó desde la web y nos especificó sus necesidades: Abrir la cocina al salón y redistribuir algunos elementos de la misma.
¡Anotado! Una vez tuvimos las cotas a mano, comenzamos a buscar una solución a esta vivienda.
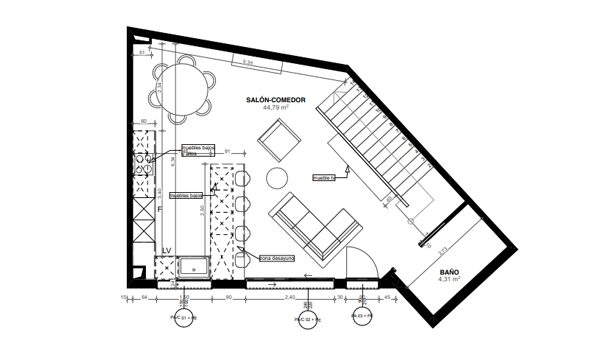
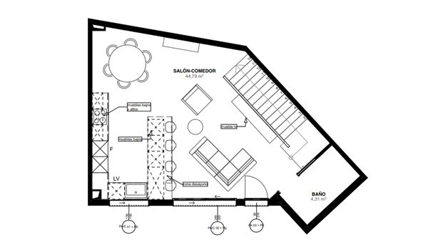
Abrimos la cocina al salón, y como no se podía colocar una isla por la proporción de la cocina, añadimos una península y muebles de almacenamiento.
En el lado del salón, cambiamos la mesa del salón rectangular por una circular, y hemos redistribuido algunos muebles para mejorar la circulación fluida.